The Weston

Unbuilt Architecture

Citation

Building Sq. Ft.

4750

Firm Name

New Architectural Services Co.

Project Summary

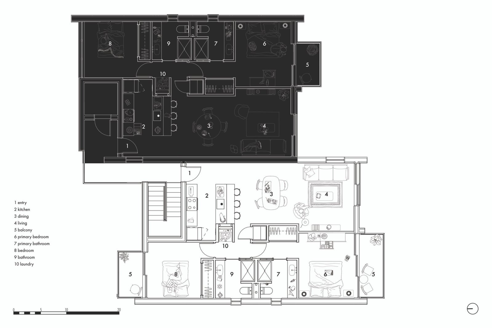
The project consists of a four-unit multi-family building with its adjacent private parking. Within each unit’s 920sqft are 2 bedrooms, 2 bathrooms, and an open living-dining space. The units at ground level have their own private patios, while the units at the second level have their own private balconies. Large windows line the northern and southern bedrooms, providing ample daylight. Each bathroom features tall, narrow windows screened by perforated steel panels, providing privacy and daylight simultaneously.

Project Narrative

For the past several years, Las Vegas has found itself in an affordable housing crisis. As of 2025, there is an estimated shortage of fifty-eight thousand homes in the valley. In an attempt to (remedy) this, developers have continued to sprawl outward, pushing the limits of our valley’s buildable area. These attempts, however, are unaffordable to the working class, and without an adequate public transportation system in place, they are also inaccessible to those without a car. When we began The Weston, the goal was to create housing that would 1) be affordable and accessible to the area’s demographic, 2) promote a reasonable density that respects the existing vernacular, and 3) comply with the 2050 master plan as a part of the urban infill initiative. The existing context is an assortment of single-family homes, apartment complexes, and small local businesses. Taking cues from its neighborhood, The Weston aims to bridge the gap between single-family homes and dense apartment complexes by proposing a fourplex. This fourplex reimagines desert urban living by celebrating a healthy lifestyle through access to cross-ventilation, natural lighting, and inspirational views. Its location on a major transit line facilitates residents’ use of public transportation, providing access to nearby retail, dining, and entertainment. The design exemplifies a progressive shift towards a community-oriented, nature-centered lifestyle that enhances the overall character of the neighborhood. The median age of the neighborhood was in the mid-30s, with most households being 1 to 2 people. To best respond, each unit consists of 2 bedrooms, 2 bathrooms, a combined living-dining area, and a private outdoor space. Despite the lot’s limited size, we felt that access to private outdoor spaces was essential to provide an opportunity for cross-ventilation while ensuring privacy and safety. The Weston differentiates itself from similar developments through energy-conscious and high-quality construction. In Las Vegas, multi-family developments are often associated with low-quality construction. Proposing an affordable housing model that can stand the test of time, add value to the local community without displacing the existing population will hopefully inspire similar developments within existing Las Vegas neighborhoods. As an ever-growing city reaching its geographical and environmental limits, investing into the core of the city is our future.

Sustainable Design & Material Choices

The Weston responds to the Mojave Desert by prioritizing passive cooling strategies. All of the exterior walls of the project are composed of Insulated Concrete Form (ICF) blocks to maximize energy efficiency and privacy between units. Efforts have been made to minimize material waste by utilizing the standard ICF block sizes to dictate wall heights, window locations, and wall configurations. Fenestration has been limited to the northern and southern facades to minimize energy loss during the pertinent summer months while permitting cross ventilation from the prevailing winds. The East and West-facing walls are 14” ICF, acting as thermal mass for the summer months.. Each window on the east and west facades is screened with a perforated metal screen to allow for filtered daylight and provide privacy from the streetscape. The exterior walls will be plastered in white stucco in order to maximize the albedo effect and reflect as much solar heat as possible. Large overhangs from the balconies and roofs aid in shading the south-facing windows. The roof’s area provides sufficient space to integrate photovoltaic panels and offset the residents’ energy consumption. The axial room layouts allow the users to cross-ventilate their homes as they see fit. On the second floor, the sloped ceilings provide a natural exhaust for warm air.

Project Address