Fasteners Inc. TI

Academic Project

Citation

Building Sq. Ft.

17763

Firm Name

Carpenter Sellers Del Gatto Architects

Project Summary

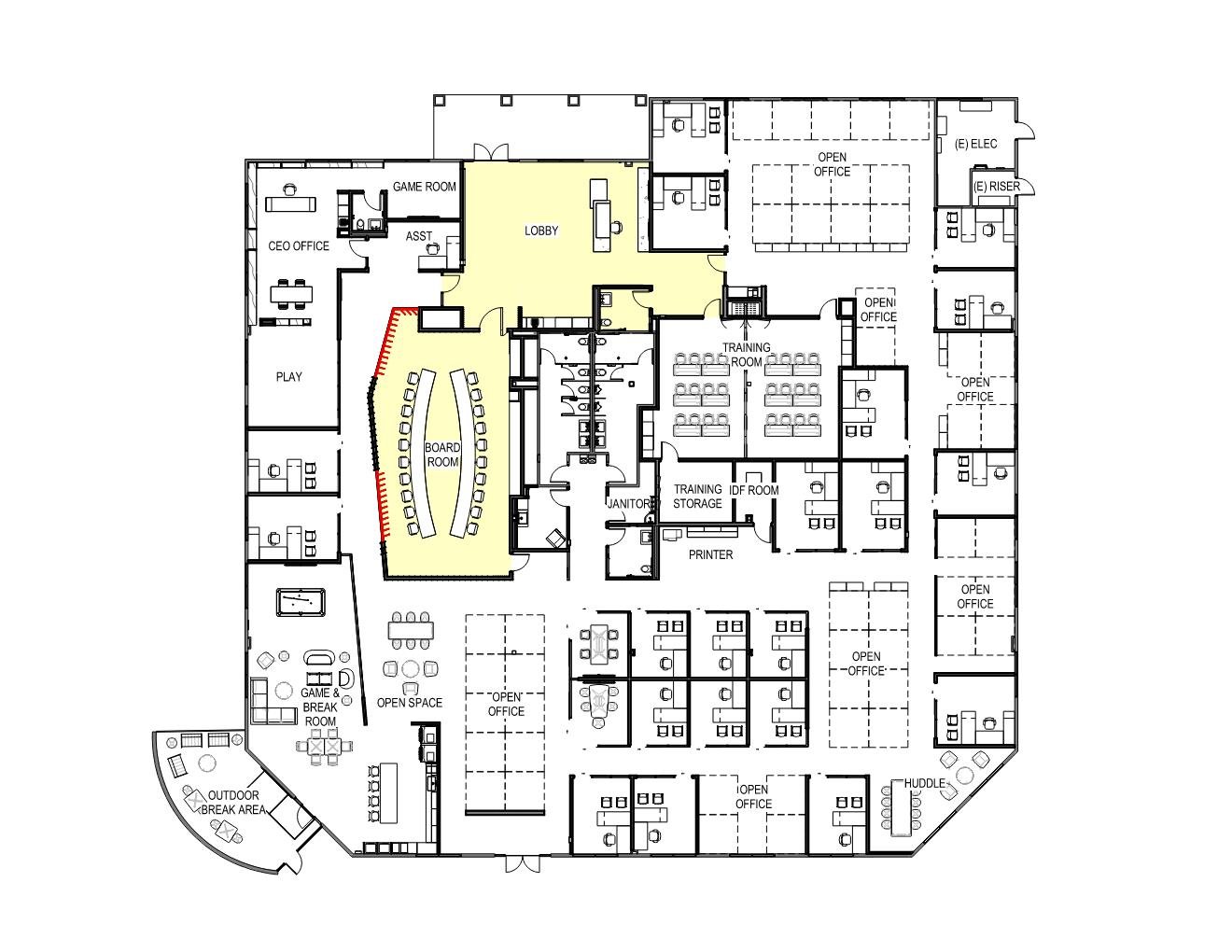
Fasteners, Inc., a professional contractor supply company, acquired a 17,763-square-foot, single-story office building in Summerlin on Center Crossing Road. CSD Architects worked with the project team to design a complete tenant improvement build-out that consolidated operations across multiple office locations throughout the Las Vegas Valley into one single headquarters. The design features an open office concept with open flex working areas and traditional offices, a board room, a training room, and a game/break room. The interior design features a mix of warm wood accent walls and glass, an executive-style board room with large vertically slatted wood privacy panels, quartz countertops, and a custom ceiling.

Project Narrative

Fasteners Inc., headquarters, was planned to bring multiple offices together at a central location. After the pandemic, the office culture suffered immensely and the executive team tasked the team leaders to create a workspace that was reflective of their successful operations; clean, welcoming, purposeful in planning with places that accommodate open and closed offices, huddle spaces, common work areas for serendipitous discussions, and a staff break/game area that embraces the Fasteners’ brand. Color is inserted as accents within the headquarters. The main conference room at the center of the space is connected to the lobby and is defined by a highly detailed millwork system that allows for different levels of privacy throughout the day.

Sustainable Design & Material Choices

Interior finishes and selections followed green building standards. Selections included high recyclable content materials with low VOC emissions. The existing space core, inclusive of restrooms, IT and electrical rooms were maintained and wet area expansion zones were planned adjacent to them.

Project Address