Echo

Unbuilt Architecture

Honor

Building Sq. Ft.

10500

Firm Name

Daniel Joseph Chenin, Ltd.

Project Summary

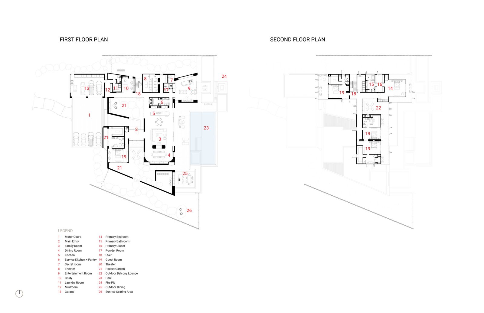
Echo emerges from the desert as both shelter and sculpture, its ribbed concrete walls and slatted wood screens forming a dialogue of permanence and lightness. The design balances monumentality with porosity, using repetition and rhythm to root the home in its site while framing shifting patterns of light and shadow. Circulation unfolds as a series of orchestrated thresholds: narrow passages release into expansive living areas, while shaded courtyards act as extensions of interior space. These spatial sequences reflect the client’s desire for both retreat and gathering, creating a residence that is private yet porous, protective yet open to its environment. Material honesty grounds the architecture. Ribbed concrete provides thermal stability, reclaimed wood softens its rigor, and operable glazing opens the home to desert winds. Together, these elements embody a synthesis of form, performance, and experience. Echo is more than a house; it is an experiential framework that reveals the desert through rhythm, light, and time. Its architecture demonstrates that resilience and refinement can coexist, transforming passive environmental strategies into an expressive design language that connects human habitation to the elemental conditions of its site.

Project Narrative

Situated within the Mojave Desert, Echo takes its name from the interplay between mass and void, solid and ephemeral. The residence was conceived not as an object imposed upon its site but as an immersive sequence shaped by rhythm, proportion, and light. Its ribbed concrete structure establishes permanence and gravitas, while wood screens, courtyards, and apertures lend porosity and fluidity, creating a dialogue between architecture and environment. The design intent was to achieve a duality: protection against the harsh desert climate while embracing its beauty. Monumental concrete ribs anchor the home, their repetition providing both structural stability and an expressive cadence. Between them, wood slats act as filters, controlling daylight, mediating privacy, and softening transitions between inside and out. Circulation unfolds like a score of light and shadow: compressed corridors release into expansive courts and living spaces, courtyards provide pauses, and each turn reveals framed views of sky or horizon. Programmatically, Echo balances intimacy and openness. Shared family spaces flow into shaded outdoor rooms, extending daily life beyond the enclosure without additional energy demand. Private suites are tucked into protective recesses, each oriented to harness daylight while shielding from excessive solar gain. The central courtyard acts as the heart of the home, a climatic lung that captures breezes, moderates temperature, and anchors the spatial order. Material choices deepen the narrative of durability and resonance. Concrete, cast with ribbed texture, absorbs and releases heat as thermal mass, stabilizing interiors across dramatic temperature swings. Reclaimed wood introduces warmth and tactility, its weathering a natural counterpoint to concrete’s permanence. Openings are carved with precision, recalling canyon slots that frame desert vistas and trace the passage of time across the façade. Constraints of climate and resource scarcity informed every move. The desert sun dictated rooflines and overhangs, while the scarcity of water drove the integration of drought-tolerant landscaping and efficient irrigation systems. The home’s layered strategy creates a resilient dwelling that adapts to seasonal extremes while reducing reliance on mechanical systems. Ultimately, Echo is conceived as an inhabitable rhythm. Its architecture is neither static nor ornamental, but performative, transforming the cycles of light, wind, and shadow into an architectural language. By uniting permanence with porosity, resilience with refinement, Echo redefines desert living as an experience of connection and wonder.

Sustainable Design & Material Choices

Echo’s environmental performance is inseparable from its architectural identity. Ribbed concrete walls act as thermal mass, absorbing heat by day and releasing it by night to stabilize interiors. Wood slat screens extend this strategy, filtering daylight, mitigating solar gain, and enabling natural ventilation through operable openings. Together, they reduce dependence on mechanical conditioning while enriching the home’s sculptural rhythm. The central courtyard serves as a climatic lung, channeling breezes for cross-ventilation and cooling while extending living areas into shaded, naturally conditioned outdoor rooms. Roof overhangs and recessed glazing choreograph shade, while drought-tolerant planting and efficient irrigation reinforce water stewardship and ecological continuity. Material selections emphasize resilience, longevity, and wellness. Concrete and reclaimed wood were chosen for durability and graceful aging, reducing replacement cycles. Low-VOC finishes ensure healthy indoor air quality, while expansive glazing provides abundant daylight and visual connection to the desert landscape, enhancing human well-being. Echo demonstrates that sustainability and poetics are not parallel agendas but one inseparable language. By embedding environmental performance into form, structure, and materiality, the home achieves resilience without compromise, transforming passive strategies into a source of artistry, delight, and enduring human connection to place.

Project Address